您好,欢迎访问绍兴上虞安通风机设备有限公司网站!
售后电话:0575-82360269
邮箱:syatfj@163.com
网站首页
走进安通
公司介绍
企业文化
测试设备
生产设备
产品中心
工程案例
资质证书
新闻资讯
资料下载
联系我们
1
2
3
您的当前位置:
网站首页
>
产品中心
>
屋顶风机、变压器风机系列
> DWT-I轴流式屋顶风机
产品中心
目前,公司生产的产品已形成二十个系列,一千多个品种规格。
产品分类
+ 消防排烟系列
DWT(HTF)屋顶消防排烟风机
HTFC系列消防排烟风机箱
HTF系列消防排烟轴流风机
KDF、HTFC-V后倾式排烟风机箱
PYHL-14A系列消防排烟混流风机
+ 轴流通风系列
CDZ低噪声轴流风机
DFBZ方形壁式轴流风机
DLZF系列制冷专用风机
DZ低噪声轴流风机
JSF机翼型轴流风机
KT40C电机外置轴流风机
SF岗位式轴流风机
T35-11轴流风机
WEXD边墙轴流风机
ZTF温控轴流风机
CBF(BAF)隔爆型防爆轴流风机
+ 混流通风系列
GXF斜流风机
HL3-2A高效混流风机
SDF隧道风机
SDS射流风机
SJG斜流风机
SWF混流风机
BSWF防爆混流风机
+ 风机箱、离心风机系列
-
风机箱系列
BF低噪声风机箱
DBF低噪声风机箱
HLF-6混流风机箱
ISQ无蜗壳离心风机
-
离心风机系列
4-79离心风机
9-19、9-26高压离心风机
CF厨房排烟风机
GDF管道离心风机
JYF静音管道风机
T4-72离心风机
+ 屋顶风机、变压器风机系列
DWT-II、III离心式屋顶风机
DWT-IV无动力屋顶风机
DWT-I轴流式屋顶风机
RTC铝制屋顶风机
-
变压器风机系列
CFZ节能型变压器风机
DBF变压器专用冷却风机
GDF干式变压器风机
+ 诱导风机、通风器
-
通风器换气扇
APB窗式换气扇
BLD吸顶式通风器
-
诱导风机系列
YDF-Z智能诱导风机
YDF管道式诱导风机
+ 风机配件、电机
-
电机系列
YB3隔爆三相异步电机
YBF2YBF3风机用防爆三相异步电机
YCL3冷却塔专用三相异步电机
YDW外转子低噪声三相异步电机
YE2(HTF)高温消防排烟风机专用电机
YE2系列三相异步电机
YE3系列三相异步电机(高效)
YSF3三相异步电机
YVF2变频调速三相异步电机
-
风阀风口消声器系列
- 阀类
防火阀
排烟阀
通风调节阀
- 风口
- 消声器
-
风机配件
叶轮
风机电控箱
减振吊钩
减振器
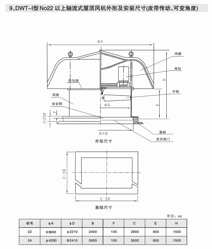
DWT-I轴流式屋顶风机